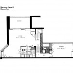
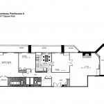
The residences of 33 Harbour Square offer 25 unique floor plan designs featuring generous single or multi-level open-floor plans. Each suite features floor to ceiling windows that allow residents an unrestricted view of either the harbour or the city.
Below are some of our most popular suite floor plans from 1-Bedroom, 2-Bedroom and 3-bedroom layouts.
















